Pierrelongue (26170) Maison de village avec terrasse tropézienne, cour intérieure et studio indépendant
Au cœur d’un authentique village provençal, cette maison de village de 190 m², entièrement rénovée avec goût, conjugue charme d’antan et confort moderne. Véritable havre de paix, elle offre une atmosphère empreinte de calme et de sérénité.
Le rez-de-jardin côté cour
accueille un studio indépendant comprenant une salle d’eau et une kitchenette, ouvrant sur une cour intérieure intime et préservée de tout vis-à-vis.
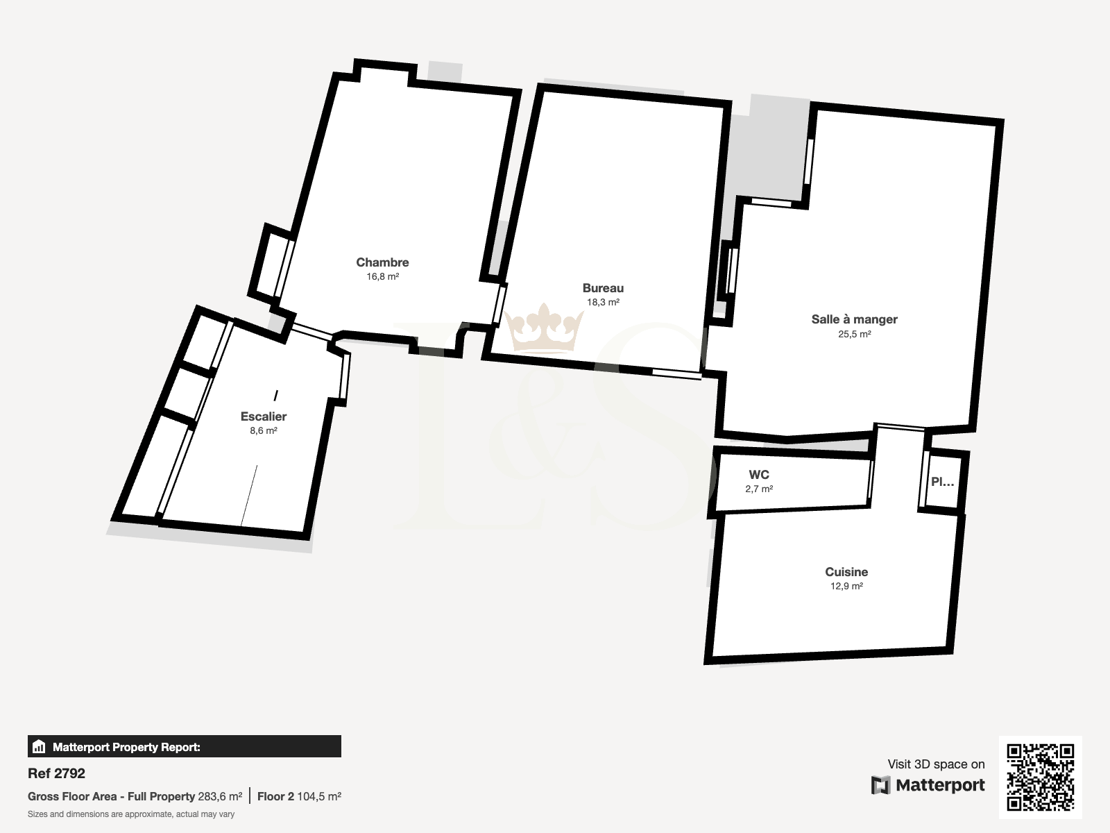
Au rez-de-chaussée, une vaste salle à manger aux poutres apparentes s’associe à une cuisine séparée, entièrement équipée et tournée vers la cour. Un bureau en pierres apparentes, une chambre dotée de son ancien évier en pierre ainsi qu’un poêle complètent ce niveau.
Le premier étage dévoile un salon chaleureux agrémenté d’un poêle à bois et donnant accès à une terrasse tropézienne, offrant une vue dégagée sur les environs. On y trouve également une chambre avec salle de bains, une salle de bains indépendante supplémentaire, ainsi qu’une grande chambre prolongée par une véranda/jardin d’hiver.
La maison est équipée de la climatisation réversible, de moustiquaires et de fenêtres à double vitrage, garantissant un confort optimal toute l’année. Deux caves voûtées viennent renforcer l’authenticité et le cachet de cette demeure.
Idéalement située, à seulement 8 minutes de Buis-les-Baronnies et 20 minutes de Vaison-la-Romaine, elle se prête aussi bien à une résidence principale qu’à une maison de vacances ou à un investissement locatif de charme.
Les caractéristiques Du bien
Les infos Financières
La base légale du traitement repose sur l’intérêt légitime de l'Agence / du Réseau.
Elles sont conservées jusqu'à demande de suppression et sont destinées à l'Agence / au Réseau.
Conformément à la loi « informatique et libertés », vous pouvez exercer votre droit d'accès aux données vous concernant et les faire rectifier en contactant l'Agence / le Réseau.
Si vous estimez, après avoir contacté l'Agence / le Réseau, que vos droits « Informatique et Libertés » ne sont pas respectés, vous pouvez adresser une réclamation à la CNIL.
Nous vous informons de l’existence de la liste d'opposition au démarchage téléphonique « Bloctel », sur laquelle vous pouvez vous inscrire ici : https://www.bloctel.gouv.fr
Dans le cadre de la protection des Données personnelles, nous vous invitons à ne pas inscrire de Données sensibles dans le champ de saisie libre
Ce site est protégé par reCAPTCHA, les Politiques de Confidentialité et les Conditions d'Utilisation de Google s'appliquent.
Détails des diagnostics énergétiques
Montant estimé des dépenses annuelles d'énergie pour un usage standard est compris entre 3 810 € et 5 220 € . Prix moyens des énergies indexés sur les années 2021, 2022 et 2023 (abonnements compris).
Charmante villa entre Vaison-la-Romaine et Buis-les-Baronnies
