Malaucène (84340) Exclusivité – T2 meublé avec balcon dans résidence avec piscine et spa – Malaucène
En exclusivité, découvrez ce charmant appartement T2 de 35 m², situé au sein d’une résidence sécurisée de standing à Malaucène, offrant des prestations rares et recherchées : piscine chauffée (ouverte d’avril à fin octobre), hammam, jacuzzi, sauna et salle de sport.
L’appartement a été entièrement rénové et est vendu meublé, équipé et décoré, clé en main.
Rien ne quitte l’appartement : mobilier, électroménager, télévision, vaisselle, décoration… tout est inclus.
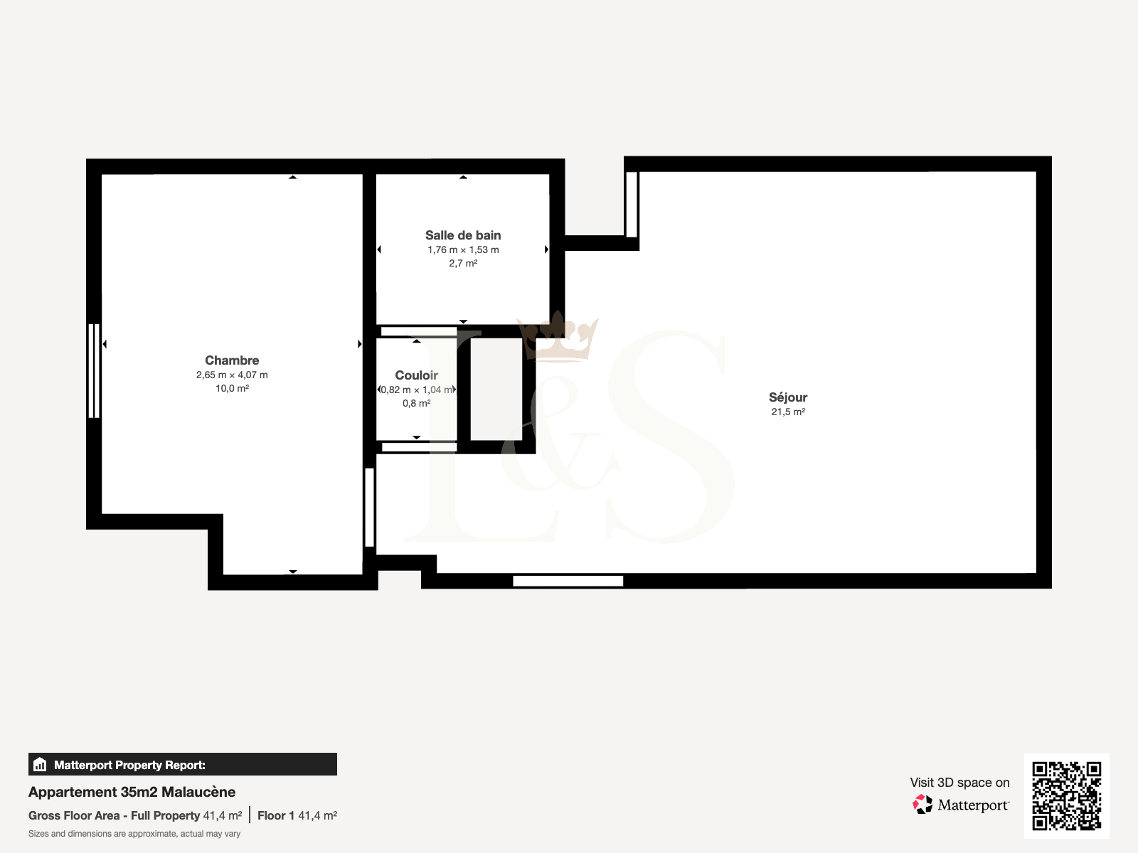
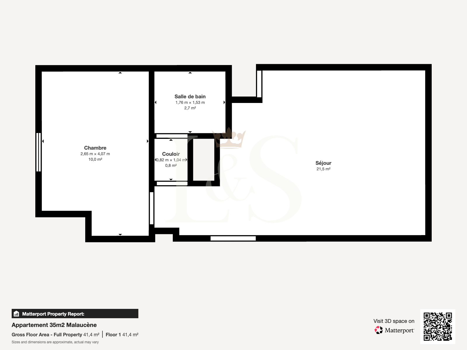
Il se compose d’une pièce de vie lumineuse avec cuisine aménagée et équipée, donnant accès à un balcon, idéal pour profiter des beaux jours.
La partie nuit comprend une chambre avec deux couchages, de nombreux placards de rangement, ainsi qu’une salle de bains et des WC séparés. Un canapé convertible dans le séjour permet d’offrir deux couchages supplémentaires, portant la capacité totale à 4 personnes.
Une place de stationnement privative au sou-sol est vendue avec le bien.
Charges de copropriété : environ 263 € / mois, incluant l’eau et l’électricité.
Appartement libre d’occupation.
Ce bien est idéal :
pour une résidence secondaire / pied-à-terre de vacances,
pour un investissement locatif (saisonnier ou meublé),
ou pour tout autre projet selon vos envies.
Visite virtuelle 3D disponible : visitez l’appartement à distance et projetez-vous immédiatement.
Un cadre privilégié, au calme, dans une résidence reconnue pour la qualité de ses équipements.
Site internet de la résidence consultable sur demande, permettant de découvrir l’ensemble des équipements et prestations.
Les caractéristiques Du bien
Les infos Financières
Ce site est protégé par reCAPTCHA, les Politiques de Confidentialité et les Conditions d'Utilisation de Google s'appliquent.
Détails des diagnostics énergétiques
Exclusivité - Charmant Duplex Lumineux au Pied du Mont Ventoux
